REQUEST A TOUR If you would like to see this home without being there in person, select the "Virtual Tour" option and your agent will contact you to discuss available opportunities.
In-PersonVirtual Tour

$ 38
New
1300 Bay ST #Second floor Toronto C02, ON M5R 3K8
UPDATED:
Key Details
Property Type Commercial
Sub Type Office
Listing Status Active
Purchase Type For Rent
Municipality Toronto C02
Subdivision Annex
MLS Listing ID C12644870
Annual Tax Amount $17
Tax Year 2025
Property Sub-Type Office
Lot Depth 73.0
Lot Front 38.2
Property Description
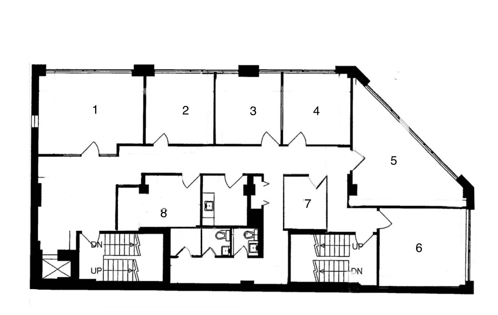
Prime Office/Retail Space for Lease in Yorkville: Located on the second floor at 1300 Bay Street, directly across from the Four Seasons Hotel, this completely beautifully renovated 2,448 sq. ft. space features an elevator that opens directly to the floor, complemented by a beautifully designed staircase for easy access. The unit includes eight rooms (six with large windows providing abundant natural light and stunning views), two washrooms, a kitchen, a reception area, and a storage unit. Ideal for law firms, accounting firms, medical spas, medical sports, massage therapy, retail, physiotherapy, chiropractic services, or creative offices, this property boasts a prime location with high foot traffic, just a few minutes from the subway station and surrounded by top restaurants, high-end shops, and renowned brand-name retailers. This well-maintained boutique building presents an exceptional opportunity for businesses seeking a prestigious address in a vibrant area.For a closer look, please check the link to see a video of the unit: Video Tour.Contact us for more details! https://drive.google.com/file/d/1ZxY5L_AkxiaIisfG8_6YsQNd_nqNpy2Y/view?usp=drivesdk
Location
Province ON
County Toronto
Community Toronto C02
Area Toronto
Interior
Cooling Yes
Exterior
Utilities Available Yes
Lot Frontage 38.2
Lot Depth 73.0
Others
Security Features No
ParcelsYN No
Listed by CITY COMMERCIAL REALTY GROUP LTD.

GET MORE INFORMATION
QUICK SEARCH





