REQUEST A TOUR If you would like to see this home without being there in person, select the "Virtual Tour" option and your agent will contact you to discuss available opportunities.
In-PersonVirtual Tour

$ 2,900
New
18 Fairhurst ST Port Hope, ON L1A 0E4
3 Beds
3 Baths
UPDATED:
Key Details
Property Type Single Family Home
Sub Type Detached
Listing Status Active
Purchase Type For Rent
Approx. Sqft 1500-2000
Subdivision Port Hope
MLS Listing ID X12679258
Style 2-Storey
Bedrooms 3
Property Sub-Type Detached
Property Description
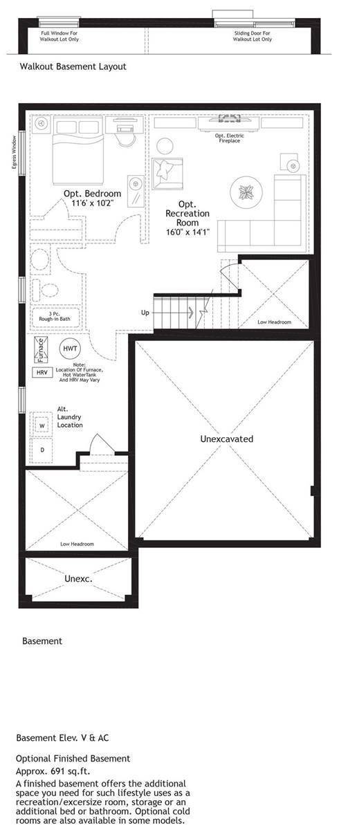
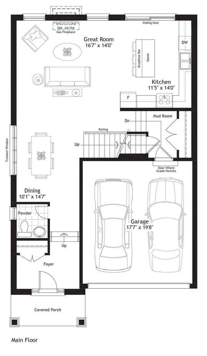
Immaculate looks like Brand New 3 Bdrm. Home Built By Mason Homes. Approx. 2200 Sq Ft From Builders Plan. Open Concept Kitchen, Eating & Family Rm. Bright, Spacious Living Rm. Gas Heat, Central Air, Laundry On 2nd Floor. Bright Master W/Ensuite & W/I Closet. No Pet, No Smoking, Or No Drugs
Location
Province ON
County Northumberland
Area Northumberland
Rooms
Family Room Yes
Basement Walk-Out
Kitchen 1
Interior
Interior Features Air Exchanger, Auto Garage Door Remote, ERV/HRV
Heating Yes
Cooling Central Air
Fireplace Yes
Heat Source Gas
Exterior
Parking Features Private Double
Garage Spaces 2.0
Pool None
Roof Type Asphalt Shingle
Total Parking Spaces 6
Building
Unit Features Electric Car Charger,Hospital,Lake Access,Park,School
Foundation Brick, Concrete Block
Others
ParcelsYN No
Listed by RE/MAX REALTRON REALTY INC.

GET MORE INFORMATION
QUICK SEARCH





